콘크리트용 앵커 설계법 및 예제에 관한 책은 아래와 같다.
한국콘크리트 학회에서 발간한
콘크리트용 앵커 설계법 및 예제집(KCI-M-06-002)
제2판 콘크리트용 앵커 설계법 및 예제집(KCI-M-10-005)
제4편 앵커설계 예제
1. 가장자리의 영향을 받지 않는 단일 헤드볼트의 인장강도

Example 1-Single headed anchor away from edges subject to seismic tension.sm
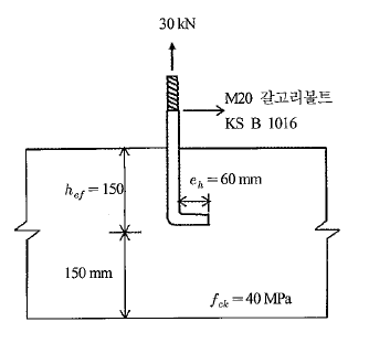
2. 가장자리의 영향을 받지 않는 단일 갈고리볼트의 인장강도

Example 2-Single hooked anchor away from edges subjected to tension.sm
3. 가장자리의 영향을 받지 않는 후설치 단일 앵커의 인장강도

Example 3-Single post-installed anchor in tension away from edges.sm
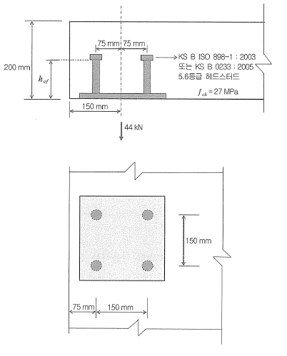
4. 가장자리 가까이 설치된 헤드스터드 그룹의 인장강도

Example 4-Group of headed studs in tension near an edge.sm
https://youtu.be/NGkEYgT_Uu4?si=kuEpuDNGHsQwhOZi
5. 가장자리 가까이 설치된 헤드볼트의 전단강도

Example 5-Single headed bolt in shear near an edge.sm
https://youtu.be/5fg6o1YGvfE?si=Df-_MjCTAoZcvJnc
https://youtu.be/85T-Ej6fCHo?si=vkwPvkZY7qjnmfO2
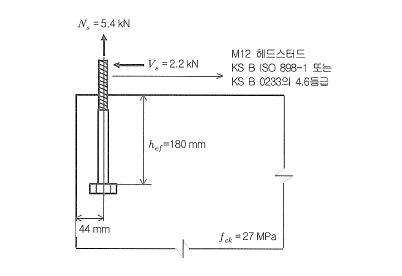
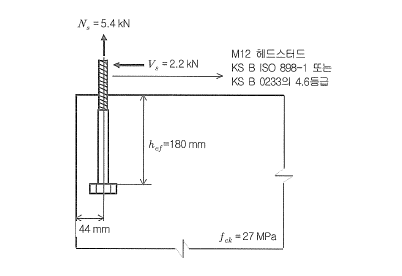
6. 인장과 전단을 받는 단일 헤드볼트

Example 6-Single headed bolt in tension and shear near an edge.sm
7. 인장과 전단을 받는 단일 후설치앵커

Example 7-Single post-installed anchor in tension and shear near an edge.sm
8. 가장자리 가까이 설치된 편심 인장력을 받는 헤드스터드 그룹

Example 8-Group of headed studs in tension near an edge with eccentricity.sm
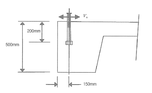
9. 가장자리 가까이 설치된 단일 헤드볼트의 전단강도

Example 9-Single headed bolt in shear near an edge 2case.sm
10. 2개 가장자리 가까이 설치된 인장과 전단을 받는 L형 갈고리볼트 그룹

Example 10-Group of hooked anchors in tension and shear with two free edges.sm
11. 구조물의 가장자리에서 모멘트와 전단을 받는 그룹 헤드볼트의 내진설계

Example 11-Group of headed bolts in tension and shear near an edge to seismic.sm
12. 가장자리의 영향을 받지 않는 단일 후설치앵커의 설계

Example 12-Single post-installed anchor in tension and shear away from edges.sm
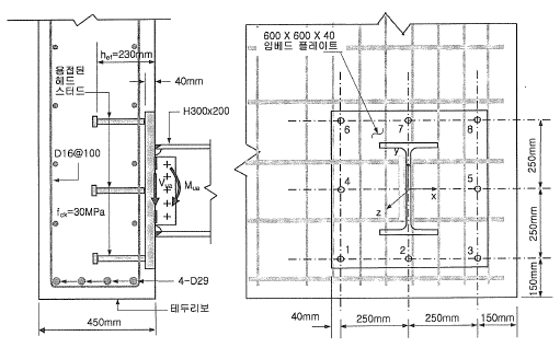
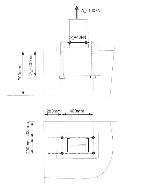
13. 모멘트와 전단을 받는 그룹앵커의 설계

Example 13-Multiple headed anchor connection subjected to moment and shear.sm
14. 앵커와 철근의 겹침이음을 이용한 주각부 설계

Example 14-Design column-base with anchors and rebar development.sm
15. 방음벽 측단부에 설치된 인장과 전단을 받는 갈고리 볼트

Example 15-Group of hooked anchors in tension and shear installed at the side ends of the sound barrier.sm
16. 가장자리 가까이 설치된 고강도 단일 갈고리 볼트의 인장강도

Example 16-Single hooked anchor in tension near an edge.sm
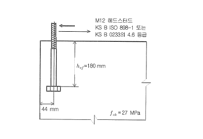
17. 가장자리 가까이 설치된 고강도 단일 헤드볼트의 인장강도

Example 17-Single headed anchor in tension near an edge subject to seismic tension.sm
18. 가장자리 가까이 설치된 고강도 단일 헤드볼트의 전단강도

Example 18-Single headed bolt in shear near an edge.sm
19. 가장자리 가까이 설치되고 편심하중을 받는 고강도 헤드스터드 그룹의 인장

Example 19-Group of headed studs in tension near an edge with eccentricity.sm
20. 2개 가장자리 가까이 설치된 인장과 전단을 받는 고강도 헤드볼트 그룹

Example 20-Group of headed bolts in tension and shear with two edges.sm
https://youtu.be/vPPaOkS3okU?si=rCSx8DLkELP4WJpR
2021.07.23 - [업무관련] - 콘크리트용 앵커 설계법 및 예제집
2020년 개정 콘크리트구조 학회기준 예제집
제19장 콘크리트용 앵커
예제 19.1 가장자리의 영향을 받지 않는 단일 갈고리볼트의 인장강도

예제 19.2 인장과 전단을 받는 단일 후설치앵커

예제 19.3 가장자리 가까이 설치된 고강도 단일 헤드볼트의 전단강도

예제 19.4 인장과 전단에 저항하는 RC 페데스탈의 선설치 앵커

예제 19.5 인장을 받는 부착식 앵커 그룹

참고자료
2022.03.30 - [업무관련] - ACI 355.4 후설치 부착식 앵커의 특성
2024.07.10 - [업무관련] - HILTI HVU2 ADHESIVE CAPSULE SYSTEM IN CRACKED AND UNCRACKED CONCRETE
Reported by ACI Committee 355
by ACI Committee 355
Guide for Design of Anchorage
to Concrete: Examples Using
ACI 318 Appendix D
CHAPTER 4—DESIGN EXAMPLES
4.1—Example 1: Single headed anchor away from edges subject to seismic tension

4.2—Example 2: Single hooked anchor away from edges subjected to seismic tension

4.3—Example 3: Single post-installed anchor in tension away from edges

4.4—Example 4: Group of headed studs in tension near an edge

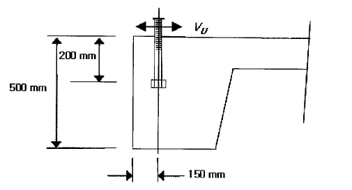
4.5—Example 5: Single headed bolt in shear near an edge

4.6—Example 6: Single headed bolt in tension and shear near an edge

4.7—Example 7: Single post-installed anchor in tension and shear near an edge

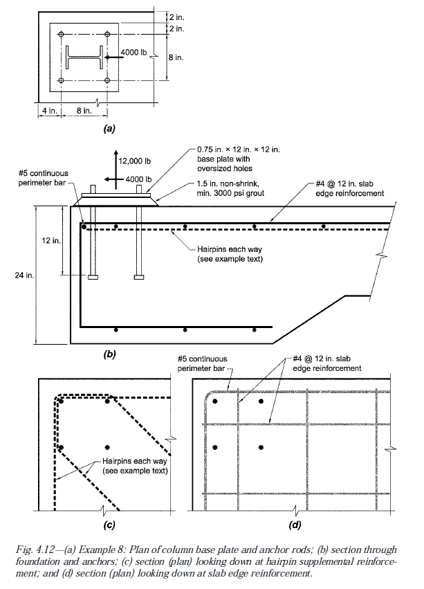
4.8—Example 8: Group of cast-in anchors in tension and shear with two free edges and supplemental reinforcement

4.9—Example 9: Group of headed studs in tension near an edge with eccentricity

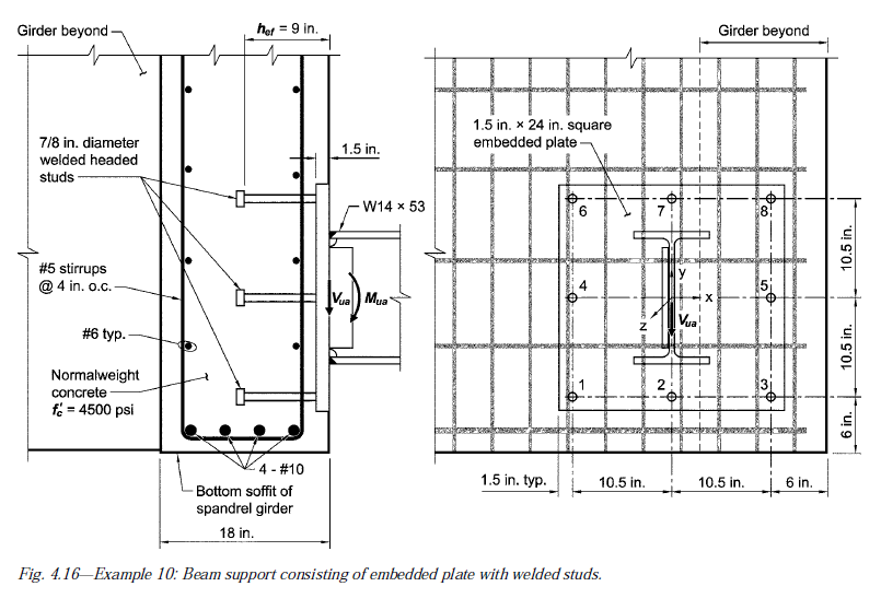
4.10—Example 10: Multiple headed anchor connection subjected to moment and shear

4.11—Example 11: Multiple post-installed anchor connection subjected to seismic moment and shear

4.12—Example 12: Multiple headed anchor connection subjected to seismic moment and shear

4.13—Example 13: Group of tension anchors on a pier with shear lug

2024.08.28 - [업무관련] - Design of anchor reinforcement in concrete pedestals_ACI318-05
최근댓글